
塔吊选型、平面布置及基础施工方案目录1第1章编制说明及依据11.1编制说明11.2编制依据11.2.1规范、规程11.1.2图纸11.1.3塔吊使用说明书1第2章工程概况12.1工程整体概况22.2项......
塔吊选型、平面布置及基础施工方案
目录
1第1章编制说明及依据
11.1编制说明
11.2编制依据
11.2.1规范、规程
11.1.2图纸
11.1.3塔吊使用说明书
1第2章工程概况
12.1工程整体概况
22.2项目简介
22.3场地水文地质及工程地质概况
32.4岩土报告相关参数表
6第3章塔吊选型及平面布置
63.1现场塔吊选型一览表
83.2塔吊基础的选型
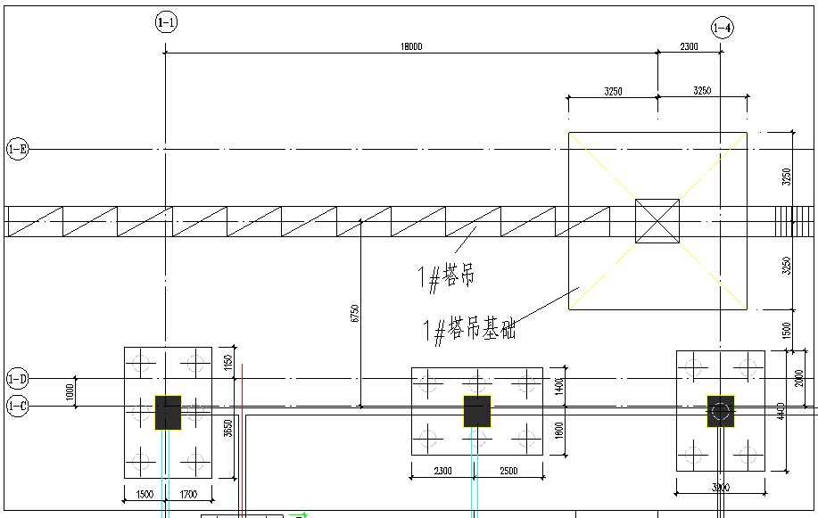
83.3塔吊基础定位图
103.4塔吊基础标高示意图
103.5塔吊基础承台平面尺寸
103.5.1QTZ160(PT6516)(1塔吊)塔吊基础承台及平面尺寸
113.5.26010塔吊(3楼首层层高为4.80m,二~五层层高为4.20m,室内外高差为200mm;2楼层高为3.60m,室内外高差为200mm;4-1楼层高为3.20m,室内外高差为200mm。
本项目主要楼栋单体3个,其中两个单体主体为装配式结构(叠合板和预制楼梯)但对材料的水平运输提出较高要求,且施工工期紧张,为满足现场施工需要,现场共布置3台塔吊:QTZ160(PT6516)塔吊2台QTZ80(6010)塔吊1台。
2.3场地水文地质及工程地质概况
建设单位提供的京津同城(天津)投资有限公司新建04-12地块高中岩土工程勘察报告(工号:KC2019B299),本项目所处场地地基均匀性及稳定性如下:
场地0.0~1.0米深度为人工填垫的①2素填土。①2素填土呈松散状态,以黏性土为主,夹少量灰渣砖石屑。该层分布稳定,填垫年限小于10年,层厚0.5~5.0米,最大厚度出现在场地25孔地段分布,层厚约0.5米。③2粉砂层分布基本稳定,局部受早期人工开挖影响,仅在场地25孔地段缺失;⑤2粉质黏土层分布不稳定,在场地5、8~18、25孔地段缺失;⑤31粉土层分布不稳定,在场地1~15、20孔地段缺失;⑤32粉砂层分布不稳定,在场地7、16、22孔地段缺失;⑤4粉质黏土层分布稳定。以上各土层厚度及顶板变化较大。
4、场地13.5~16.0米深度为第Ⅱ陆相层的⑧1粉砂层。⑧1粉砂层分布稳定,厚度及顶板变化稍大。
5、场地16.0~28.0米深度为第Ⅲ陆相层的⑨1粉质黏土层、⑨2粉土层、⑨3粉质黏土层、⑨4粉土层、⑨5粉质黏土层、⑨51粉土层、⑨6黏土层。⑨1、⑨3、⑨5层分布稳定,厚度及顶板高程变化稍大;⑨2、⑨4、⑨51、⑨6层分布不稳定,厚度及顶板高程变化稍大。⑨2粉土层仅在场地3、8、16、18孔地段分布;⑨4粉土层在场地4、8、16孔地段缺失;⑨51粉土层仅在场地1、16~13~20、26塔吊和2塔吊选用6010塔吊。此塔吊基础你选用砼预制拼装塔机基础。
其中塔吊基础的具体定位详见"塔吊基础定位图";
塔吊承台顶标高的详见"塔吊基础承台顶标高控制图"。
3.3塔吊基础定位图

图3.3-11塔吊基础定位详图

图3.3-33塔吊距离北侧工地在施住宅楼的距离,需要将2和2塔吊)基础承台及平面尺寸

施工准备
技术准备
1、施工前认真审核图纸,熟悉各塔吊定位与周边建筑物关系;
2、针对各塔吊基础的详细要求,编写技术交底,提出材料计划;
3、塔吊基础施工前要对定位及标高进行复合;
4、相关材料进场后要进行复试。
劳动力准备
塔吊基础承台的钢筋、模板、混凝土由劳务队伍进行施工,共计劳动力25人,相应的工种配备如下:
表4.2-1劳动力计划表
注:以上数据仅用于现场施工参考,不作为其他依据。
施工工期
表4.3-1塔吊进出场时间表
注:以上数据仅用于现场施工参考,不作为其他依据。
QTZ160(PT6516)塔吊基础施工
5.1桩基施工
5.1.1工艺流程

图5.1-1打桩工艺流程图
5.2承台施工
5.2.1工艺流程
图5.2-1工艺流程图
5.2.2施工要求
1、基础承台土方开挖按1:1大坡度放坡(坑底宽度为承台垫层宽度b+工作面宽度600mm×2)。详见图5.2-2土方开挖平面图及图5.2-3开挖剖面图。
图5.2-2土方开挖平面示意图
图5.2-31-1剖面图
2、承台底部浇筑100mm厚C20混凝土垫层。
3、承台侧模采用24砖胎膜,高度为承台高度。
4、塔吊支脚的安装放置应连同第一节标准节进行,待调至垂直后方与承台内钢筋焊接牢固。
5、承台钢筋在遇到塔吊支角时可避开绑扎,但不允许将钢筋截断。
6、在塔吊支角安装完成后,浇注混凝土前应再次复核塔吊支角的垂直度,满足塔吊安装要求后再准备浇注承台混凝土。
7、混凝土采用连续分层浇筑。浇筑混凝土时应随时监测塔吊支脚的垂尺度,混凝土的振捣采用对称振捣的方法,杜绝振动泵碰到塔吊支脚。塔吊的安装要基础混凝土强度达到100%后方可进行。
8、浇筑混凝土的过程中留置好标养及同条件试块。
第6章6010塔吊基础施工
6.1基础简介
此塔机基础分别由1块中心键、4件过度键、4件端件、4件端键及四件配重件组成,各种构件通过柔性材料穿孔结成十字型组合体,再在十字型组合体的相应构件上扣压配重组成塔机基础整体。组合体的过渡键,端键上设有多种组合的螺栓孔,安装塔机时可根据塔机机型选择相应螺栓孔通过专用螺栓连接紧固。
6.2工艺流程
6.3技术参数
(1)地基承载力设计标准值fk≥0.12Mpa
(2)混凝土垫层强度C30,表面平整度≯4mm
(3)钢铰线单根工作拉力值为12吨
(4)地脚螺栓单根紧固力矩≥2000NM
6.4塔机基础的安装
1、塔机基础拼装图见塔吊说明书。
2.清理构件垂直连接面不得有任何杂物,清理抗剪键的凹槽内不得有任何存留物,钢铰线管道内不得有存留物。
3.在抗剪键凹槽内注槽1/3等的黄油,把抗剪键均匀地包裹,以防锈蚀。
4、开始吊装中心键按塔机基础十字线就位。
5、吊装过度键、端键。
6、穿钢铰线。将钢绞线穿入预埋的Ф25pvc管中,上面4根,下面8根,并使钢铰线固定锚头,抗压板依次紧挨。
6.5钢铰线张拉
(1)钢铰线两端预留约60—70cm
(2)接好油泵的电源线及千斤顶油管,并开机试运行检查千斤顶性能是否良好,同时认真检查被拼装物件的间隙内有无杂质。
(3)钢铰线张拉,首先把下部单根钢铰线穿入千斤顶,使千斤顶顶头紧挨瞄具,把千斤顶端平,启动油泵,使千斤顶开始工作,钢铰线张拉直到把构件合拢在—起,使构件间无间隙且油泵表略大于要求值为止,当首根钢铰线张拉末达到构件间无间隙时,可用相同办法张拉第二根钢铰线,直到构件间隙紧密结合为止。
(4)然后以同样的方法上下轮回的张拉,连接固定各基础构件的钢铰线直径为15.24mm,每根所能承受的拉力值为1860Mpa。
(5)预应力钢铰线为上部4根,下部8根,每根施加的预应力为30MP左右,控制在12-14吨左右。
(6)预应力钢铰线张拉完成后,再安装四或八块配重件。
(7)基础安装完成后,应组织相关人员验收,验收合格后方可进行塔机的安装。
6.6塔机基础的拆卸
当塔机结构全部拆完以后,方可进行塔机基础的拆卸。
先用千斤顶进行退张,使钢铰线完全卸落后,把钢铰线抽出,构件分离时,首先撬棍在分离构造处把构件分开10-20mm再吊装,将构件装车运走至此塔基工作全部完成。
6.7安全措施
1.建立建全职业健康安全管理体系(GB/28001:2001),明确岗位责任制,做到分工明确,落实到位。
2.辨识塔机基础施工及安装中可能存在的安全隐患(危险源)制定相应的控制措施,并对班组织进行安全技术交底。
3.塔机基础的吊装和塔机安装,应专人指挥。在施工现场设置必要的隔离区域,严禁非安装人员入内。
4.建立必要的通讯联络保障系统,确保安装信息畅通,确保安装行动步调统一。
5.塔机在使用过程中,每周应检查螺母是否禁锢,检查地基是否发生不均匀沉降。尤其是在刮风雨天气,增加检查地基是否发生不均匀沉降的频次。
6.塔机基础地基应进行扦探、地基不得有垃圾土、墓穴、空洞;安装塔机基础应避开井点、降水点。
7.塔机安装的安全技术要求应严格执行相应型号塔机安全技术要求及国家相应法规及规范要求。
第7章安全措施
1、施工必须符合《建设工程施工安全技术操作规程》,操作人员持证上岗,并进行安全技术交底,遵守用电安全规则。
2、落实各项安全管理制度,定期召开安全生产专题会议,经常组织检查施工安全情况。实施"施工安全否决制",对违章作业,专职安全员有权中止施工,并限期进行整改,坚决服从调度,配合各级组织进行的安全检查。
3、现场文明施工严格按照天津市政府的有关规定执行。按"谁施工、谁负责"的原则,既要统一领导,又要分工负责。
4、服从现场的统一布置管理,按要求堆置原材料,并做到挂牌堆放整齐,施工现场做到工完场清。
5、动火作业前一定要办理相关动火作业手续。
6、桩机组装、拆卸必须在空旷地面进行,上空不得有高压线或障碍物,确保组装、拆卸、装车顺利进行。
7、桩机施打过程中,施工人员必须远离桩锤5米以外的安全处。
8、卸桩、吊桩过程中,挂桩小钩外必须系好风缆绳,确保控制桩吊运中的方向,以防发生与桩机、吊车、汽车相碰事故。
9、专职安全员必须将送桩坑作为一个重大隐患点,送桩坑封闭同桩口,虽然采取了封闭、包围、挂牌等措施,但还必须重点监控,经常巡视,以免人、物坠落。
10、吊桩、喂桩、送桩、吊机和桩机移位时必须有专人指挥,分工明确,统一信号。夜间指挥必须用明暗信号。
11、施工机电设备均应设置安全防护罩并接地接零,机具操作由专人负责,并执行挂牌制度,做到单机单闸单独触保器,防止触电事故的发生。
12、进入施工现场必须戴好安全帽,夜间施工必须有足够的照明。
塔吊基础详图及计算书
8.1QTZ160(PT6516)塔吊基础详图


8.2QTZ160(PT6516)塔吊基础计算书
8.2.1.独立桩承台设计(CT5-800-非工作状态)
执行规范:
《混凝土结构设计规范》(GB50010-2010(2015年版)),本文简称《混凝土规范》
《建筑地基基础设计规范》(GB50007-2011),本文简称《地基规范》
《建筑结构荷载规范》(GB50009-2012),本文简称《荷载规范》
《建筑桩基技术规范》(JGJ94-2008),本文简称《桩基规范》
钢筋:d-HPB300;D-HRB335;E-HRB400;F-RRB400;G-HRB500;Q-HRBF400;R-HRBF500
-----------------------------------------------------------------------
1设计资料
1.1已知条件
承台参数(5桩承台第1种)
_承台底标高_:-3.000(m)
_承台的混凝土强度等级_:C40
_承台钢筋级别_:HRB400
_配筋计算as_:100(mm)
承台尺寸参数
桩参数
_桩类型_:泥浆护壁钻(冲)孔桩
_承载力性状_:端承摩擦桩
_桩长_:28.000(m)
_是否方桩_:否
_桩直径_:800(mm)
_桩的混凝土强度等级_:C35
_单桩极限承载力标准值_:4000.000(kN)
_桩端阻力比_:0.400
_均匀分布侧阻力比_:0.400
_是否按复合桩基计算_:是
_桩基沉降计算经验系数_:1.000
_压缩层深度应力比_:20.00%
柱参数
_柱宽_:1600(mm)
_柱高_:1600(mm)
_柱子转角_:0.000(度)
_柱的混凝土强度等级_:C30
柱上荷载
标准值
_弯矩Mxk_:3111.000()
_弯矩Myk_:3111.000()
_轴力Nk_:662.200(kN)
_剪力Vxk_:116.700(kN)
_剪力Vyk_:116.700(kN)
是否为地震荷载组合_:否
基础与覆土的平均容重_:25.000(kN/m3)
土层信息
_地面标高_:-1.600(m)
_地下水标高_:-6.000(m)
1.2计算内容
(1)桩基竖向承载力计算
(2)承台计算(受弯、冲切、剪计算及局部受压计算)
(3)软弱下卧层验算
(4)桩基沉降计算
2.计算过程及计算结果
2.1桩基竖向承载力验算
(1)桩基竖向承载力特征值R计算
根据《桩基规范》5.2.2及5.2.3

式中:
Ra——单桩竖向承载力特征值;
Quk——单桩竖向极限承载力标准值;
K——安全系数,取K=2。
单桩竖向极限承载力标准值Quk=4000.000(kN)
单桩竖向承载力特征值Ra=2000.000(kN)
根据《桩基规范》5.2.5不考虑地震作用
_承台效应系数ηc_=0.090
_地基承载力特征值加权平均值fak_=117.323(kPa)
_计算基桩所对应的承台底净面积Ac_=7.947(m2)
复合桩基竖向承载力特征值R_=2083.917(kN)
(2)桩基竖向承载力验算
根据《桩基规范》5.1.1式5.1.1-1计算轴心荷载作用下桩顶全反力,式5.1.1-2计算偏心荷载作用下桩顶全反力
在轴心荷载作用下,桩顶全反力Nk=428.190(kN)
按《桩基规范》5.2.1(不考虑地震作用)式5.2.1-1(Nk≤1.00R)验算
_(Nk=428.190kN)≤(1.00R=2083.917kN)满足.
在偏心荷载作用下,按《桩基规范》5.2.1(不考虑地震作用)式5.2.1-2(Nkmax≤1.20R)计算
_桩号1:(N1k=398.465kN)≤(1.20R=2500.700kN)满足.
_桩号2:(N2k=1015.171kN)≤(1.20R=2500.700kN)满足.
_桩号3:(N3k=428.190kN)≤(1.20R=2500.700kN)满足.
_桩号4:(N4k=-158.791kN)≤(1.20R=2500.700kN)未进行抗拔验算.
设计说明:已进行抗拔计算,详抗拔承载力计算书。
_桩号5:(N5k=457.915kN)≤(1.20R=2500.700kN)满足.
_(Nkmax=1015.171kN)≤(1.20R=2500.700kN)满足.
2.2承台受力计算
(1)各桩净反力(kN)
根据《桩基规范》5.1.1式5.1.1-2计算桩顶净反力(G=0.0kN)
桩号01净反力:1000.000(kN)
桩号02净反力:1018.868(kN)
桩号03净反力:1000.000(kN)
桩号04净反力:981.132(kN)
桩号05净反力:1000.000(kN)
最大桩净反力:1018.868(kN)
(2)受弯计算
根据《桩基规范》5.9.2第1款,计算承台柱边截面弯矩
柱边左侧承台弯矩:3665.094()
柱边右侧承台弯矩:3734.906()
柱边上侧承台弯矩:3665.094()
柱边下侧承台弯矩:3734.906()
承台控制弯矩
_Mx:3734.906()
_My:3734.906()
承台计算配筋
_承台X方向计算配筋Asx:按构造筋
_承台Y方向计算配筋Asy:按构造配筋
(3)柱对承台的冲切
根据《桩基规范》5.9.7计算
柱截面尺寸(mm)_:柱宽1600;柱高1600
桩截面换算边长(mm)_:640
柱冲切计算承台厚度h0_:1250(mm)
截面高度影响系数βhp_:0.954
冲切面参数:
左右下上
冲跨(mm)1250125012501250
冲切边长(mm)2850285028502850
冲跨比λ1.0001.0001.0001.000
冲切系数β00.7000.7000.7000.700
抗冲切力(kN)4068.8654068.8654068.8654068.865
总抗冲切力:16275.459(kN)
(Fl=4000.000kN)≤(抗冲切力=16275.459kN)满足.
(4)桩对承台的冲切
根据《桩基规范》5.9.7及5.9.8计算
承台冲切破坏锥体一半有效高度处的周长um,中桩按《桩基规范》5.9.7第1款计算,边桩按《桩基规范》5.9.8第1款计算,角桩按《桩基规范》5.9.8第2款计算。
桩号1为角桩
_冲切面参数:
_右上
_冲跨(mm)1250_1250
_冲切边长(mm)1545_1545
_冲跨比λ1.000_1.000
_冲切系数β00.467_0.467
_抗冲切力(kN)1470.502_1470.502
_总抗冲切力(kN):2941.004
_总冲切力(kN):1000.000
_(Fl=1000.000kN)≤(抗冲切力=2941.004kN)满足.
桩号2为角桩
_冲切面参数:
_左上
_冲跨(mm)1250_1250
_冲切边长(mm)1545_1545
_冲跨比λ1.000_1.000
_冲切系数β00.467_0.467
_抗冲切力(kN)1470.502_1470.502
_总抗冲切力(kN):2941.004
_总冲切力(kN):1018.868
_(Fl=1018.868kN)≤(抗冲切力=2941.004kN)满足.
桩号3不需要验算
桩号4为角桩
_冲切面参数:
_右下
_冲跨(mm)1250_1250
_冲切边长(mm)1545_1545
_冲跨比λ1.000_1.000
_冲切系数β00.467_0.467
_抗冲切力(kN)1470.502_1470.502
_总抗冲切力(kN):2941.004
_总冲切力(kN):981.132
_(Fl=981.132kN)≤(抗冲切力=2941.004kN)满足.
桩号5为角桩
_冲切面参数:
_左下
_冲跨(mm)1250_1250
_冲切边长(mm)1545_1545
_冲跨比λ1.000_1.000
_冲切系数β00.467_0.467
_抗冲切力(kN)1470.502_1470.502
_总抗冲切力(kN):2941.004
_总冲切力(kN):1000.000
_(Fl=1000.000kN)≤(抗冲切力=2941.004kN)满足.
所有桩:
_角桩对承台冲切验算满足.
_边桩对承台冲切验算满足.
_中桩对承台冲切验算满足.
(5)承台抗剪验算:
根据《桩基规范》5.9.10计算
剪切面1
_剪切面坐标(mm):(3250,-2330)~(-3250,-2330)
_实际宽度(mm):6500计算宽度b(mm):6500
_剪跨a(mm):1530剪跨比λ:1.224
_剪切系数α:0.787高度影响系数βhs:0.894
_抗剪切力(kN):9778.399
_剪切力设计值(kN):2018.868
_(V=2018.868kN)≤9778.399kN满足截面要求.
剪切面2
_剪切面坐标(mm):(2330,-3250)~(2330,3250)
_实际宽度(mm):6500计算宽度b(mm):6500
_剪跨a(mm):1530剪跨比λ:1.224
_剪切系数α:0.787高度影响系数βhs:0.894
_抗剪切力(kN):9778.399
_剪切力设计值(kN):2018.868
_(V=2018.868kN)≤9778.399kN满足截面要求.
剪切面3
_剪切面坐标(mm):(3250,2330)~(-3250,2330)
_实际宽度(mm):6500计算宽度b(mm):6500
_剪跨a(mm):1530剪跨比λ:1.224
_剪切系数α:0.787高度影响系数βhs:0.894
_抗剪切力(kN):9778.399
_剪切力设计值(kN):1981.132
_(V=1981.132kN)≤9778.399kN满足截面要求.
剪切面4
_剪切面坐标(mm):(-2330,-3250)~(-2330,3250)
_实际宽度(mm):6500计算宽度b(mm):6500
_剪跨a(mm):1530剪跨比λ:1.224
_剪切系数α:0.787高度影响系数βhs:0.894
_抗剪切力(kN):9778.399
_剪切力设计值(kN):1981.132
_(V=1981.132kN)≤9778.399kN满足截面要求.
所有剪切面:
_承台下边受剪验算满足.
_承台右边受剪验算满足.
_承台上边受剪验算满足.
_承台左边受剪验算满足.
(6)局部受压验算:
柱对承台局部受压验算:不需要验算.
桩对承台局部受压验算:不需要验算.
(7)承台受力计算结果
X向主筋配置:E20@150(13509mm2,0.154%)Asx=13163mm2满足
Y向主筋配置:E20@150(13509mm2,0.154%)Asy=13163mm2满足
抗冲切:满足
抗剪切:满足
局部受压:满足
2.3软弱下卧层验算结果
桩端持力层的地基承载力特征值fa1:0.000(kPa)
下卧层的地基承载力特征值fa2:0.000(kPa)
桩距sa:2.907(m)
无下卧土层,不需要验算。
2.4沉降计算结果(准永久组合作用下计算)
根据《桩基规范》5.5.8计算桩基沉降计算深度Zn
根据《桩基规范》5.5.6式5.5.6计算沉降
沉降计算点位置(x,y,z)(m):(0.000,0.000,-31.000)
沉降计算深度zn(m):5.400
沉降计算点附加应力(kPa):127.443
桩基等效沉降系数ψe:0.170
沉降计算点最终沉降量(mm):6.9
(x=0.000,y=0.000)承台沉降量(mm):6.9
8.2.2独立桩承台设计(CT5-800-工作状态)
执行规范:
《混凝土结构设计规范》(GB50010-2010(2015年版)),本文简称《混凝土规范》
《建筑地基基础设计规范》(GB50007-2011),本文简称《地基规范》
《建筑结构荷载规范》(GB50009-2012),本文简称《荷载规范》
《建筑桩基技术规范》(JGJ94-2008),本文简称《桩基规范》
钢筋:d-HPB300;D-HRB335;E-HRB400;F-RRB400;G-HRB500;Q-HRBF400;R-HRBF500
-----------------------------------------------------------------------
1设计资料
1.1已知条件
承台参数(5桩承台第1种)
_承台底标高_:-3.000(m)
_承台的混凝土强度等级_:C40
_承台钢筋级别_:HRB400
_配筋计算as_:100(mm)
承台尺寸参数
桩参数
_桩类型_:泥浆护壁钻(冲)孔桩
_承载力性状_:端承摩擦桩
_桩长_:28.000(m)
_是否方桩_:否
_桩直径_:800(mm)
_桩的混凝土强度等级_:C35
_单桩极限承载力标准值_:4000.000(kN)
_桩端阻力比_:0.400
_均匀分布侧阻力比_:0.400
_是否按复合桩基计算_:是
_桩基沉降计算经验系数_:1.000
_压缩层深度应力比_:20.00%
柱参数
_柱宽_:1600(mm)
_柱高_:1600(mm)
_柱子转角_:0.000(度)
_柱的混凝土强度等级_:C30
柱上荷载
标准值
_弯矩Mxk_:2076.400()
_弯矩Myk_:2076.400()
_轴力Nk_:762.200(kN)
_剪力Vxk_:30.600(kN)
_剪力Vyk_:30.600(kN)
是否为地震荷载组合_:否
基础与覆土的平均容重_:25.000(kN/m3)
土层信息
_地面标高_:-1.600(m)
_地下水标高_:-6.000(m)
1.2计算内容
(1)桩基竖向承载力计算
(2)承台计算(受弯、冲切、剪计算及局部受压计算)
(3)软弱下卧层验算
(4)桩基沉降计算
2.计算过程及计算结果
2.1桩基竖向承载力验算
(1)桩基竖向承载力特征值R计算
根据《桩基规范》5.2.2及5.2.3

式中:
Ra——单桩竖向承载力特征值;
Quk——单桩竖向极限承载力标准值;
K——安全系数,取K=2。
单桩竖向极限承载力标准值Quk=4000.000(kN)
单桩竖向承载力特征值Ra=2000.000(kN)
根据《桩基规范》5.2.5不考虑地震作用
_承台效应系数ηc_=0.090
_地基承载力特征值加权平均值fak_=117.323(kPa)
_计算基桩所对应的承台底净面积Ac_=7.947(m2)
复合桩基竖向承载力特征值R_=2083.917(kN)
(2)桩基竖向承载力验算
根据《桩基规范》5.1.1式5.1.1-1计算轴心荷载作用下桩顶全反力,式5.1.1-2计算偏心荷载作用下桩顶全反力
在轴心荷载作用下,桩顶全反力Nk=448.190(kN)
按《桩基规范》5.2.1(不考虑地震作用)式5.2.1-1(Nk≤1.00R)验算
_(Nk=448.190kN)≤(1.00R=2083.917kN)满足.
在偏心荷载作用下,按《桩基规范》5.2.1(不考虑地震作用)式5.2.1-2(Nkmax≤1.20R)计算
_桩号1:(N1k=440.396kN)≤(1.20R=2500.700kN)满足.
_桩号2:(N2k=839.964kN)≤(1.20R=2500.700kN)满足.
_桩号3:(N3k=448.190kN)≤(1.20R=2500.700kN)满足.
_桩号4:(N4k=56.416kN)≤(1.20R=2500.700kN)满足.
_桩号5:(N5k=455.984kN)≤(1.20R=2500.700kN)满足.
_(Nkmax=839.964kN)≤(1.20R=2500.700kN)满足.
2.2承台受力计算
(1)各桩净反力(kN)
根据《桩基规范》5.1.1式5.1.1-2计算桩顶净反力(G=0.0kN)
桩号01净反力:1000.000(kN)
桩号02净反力:1018.868(kN)
桩号03净反力:1000.000(kN)
桩号04净反力:981.132(kN)
桩号05净反力:1000.000(kN)
最大桩净反力:1018.868(kN)
(2)受弯计算
根据《桩基规范》5.9.2第1款,计算承台柱边截面弯矩
柱边左侧承台弯矩:3665.094()
柱边右侧承台弯矩:3734.906()
柱边上侧承台弯矩:3665.094()
柱边下侧承台弯矩:3734.906()
承台控制弯矩
_Mx:3734.906()
_My:3734.906()
承台计算配筋
_承台X方向计算配筋Asx:按构造筋
_承台Y方向计算配筋Asy:按构造配筋
(3)柱对承台的冲切
根据《桩基规范》5.9.7计算
柱截面尺寸(mm)_:柱宽1600;柱高1600
桩截面换算边长(mm)_:640
柱冲切计算承台厚度h0_:1250(mm)
截面高度影响系数βhp_:0.954
冲切面参数:
左右下上
冲跨(mm)1250125012501250
冲切边长(mm)2850285028502850
冲跨比λ1.0001.0001.0001.000
冲切系数β00.7000.7000.7000.700
抗冲切力(kN)4068.8654068.8654068.8654068.865
总抗冲切力:16275.459(kN)
(Fl=4000.000kN)≤(抗冲切力=16275.459kN)满足.
(4)桩对承台的冲切
根据《桩基规范》5.9.7及5.9.8计算
承台冲切破坏锥体一半有效高度处的周长um,中桩按《桩基规范》5.9.7第1款计算,边桩按《桩基规范》5.9.8第1款计算,角桩按《桩基规范》5.9.8第2款计算。
桩号1为角桩
_冲切面参数:
_右上
_冲跨(mm)1250_1250
_冲切边长(mm)1545_1545
_冲跨比λ1.000_1.000
_冲切系数β00.467_0.467
_抗冲切力(kN)1470.502_1470.502
_总抗冲切力(kN):2941.004
_总冲切力(kN):1000.000
_(Fl=1000.000kN)≤(抗冲切力=2941.004kN)满足.
桩号2为角桩
_冲切面参数:
_左上
_冲跨(mm)1250_1250
_冲切边长(mm)1545_1545
_冲跨比λ1.000_1.000
_冲切系数β00.467_0.467
_抗冲切力(kN)1470.502_1470.502
_总抗冲切力(kN):2941.004
_总冲切力(kN):1018.868
_(Fl=1018.868kN)≤(抗冲切力=2941.004kN)满足.
桩号3不需要验算
桩号4为角桩
_冲切面参数:
_右下
_冲跨(mm)1250_1250
_冲切边长(mm)1545_1545
_冲跨比λ1.000_1.000
_冲切系数β00.467_0.467
_抗冲切力(kN)1470.502_1470.502
_总抗冲切力(kN):2941.004
_总冲切力(kN):981.132
_(Fl=981.132kN)≤(抗冲切力=2941.004kN)满足.
桩号5为角桩
_冲切面参数:
_左下
_冲跨(mm)1250_1250
_冲切边长(mm)1545_1545
_冲跨比λ1.000_1.000
_冲切系数β00.467_0.467
_抗冲切力(kN)1470.502_1470.502
_总抗冲切力(kN):2941.004
_总冲切力(kN):1000.000
_(Fl=1000.000kN)≤(抗冲切力=2941.004kN)满足.
所有桩:
_角桩对承台冲切验算满足.
_边桩对承台冲切验算满足.
_中桩对承台冲切验算满足.
(5)承台抗剪验算:
根据《桩基规范》5.9.10计算
剪切面1
_剪切面坐标(mm):(3250,-2330)~(-3250,-2330)
_实际宽度(mm):6500计算宽度b(mm):6500
_剪跨a(mm):1530剪跨比λ:1.224
_剪切系数α:0.787高度影响系数βhs:0.894
_抗剪切力(kN):9778.399
_剪切力设计值(kN):2018.868
_(V=2018.868kN)≤9778.399kN满足截面要求.
剪切面2
_剪切面坐标(mm):(2330,-3250)~(2330,3250)
_实际宽度(mm):6500计算宽度b(mm):6500
_剪跨a(mm):1530剪跨比λ:1.224
_剪切系数α:0.787高度影响系数βhs:0.894
_抗剪切力(kN):9778.399
_剪切力设计值(kN):2018.868
_(V=2018.868kN)≤9778.399kN满足截面要求.
剪切面3
_剪切面坐标(mm):(3250,2330)~(-3250,2330)
_实际宽度(mm):6500计算宽度b(mm):6500
_剪跨a(mm):1530剪跨比λ:1.224
_剪切系数α:0.787高度影响系数βhs:0.894
_抗剪切力(kN):9778.399
_剪切力设计值(kN):1981.132
_(V=1981.132kN)≤9778.399kN满足截面要求.
剪切面4
_剪切面坐标(mm):(-2330,-3250)~(-2330,3250)
_实际宽度(mm):6500计算宽度b(mm):6500
_剪跨a(mm):1530剪跨比λ:1.224
_剪切系数α:0.787高度影响系数βhs:0.894
_抗剪切力(kN):9778.399
_剪切力设计值(kN):1981.132
_(V=1981.132kN)≤9778.399kN满足截面要求.
所有剪切面:
_承台下边受剪验算满足.
_承台右边受剪验算满足.
_承台上边受剪验算满足.
_承台左边受剪验算满足.
(6)局部受压验算:
柱对承台局部受压验算:不需要验算.
桩对承台局部受压验算:不需要验算.
(7)承台受力计算结果
X向主筋配置:E20@150(13509mm2,0.154%)Asx=13163mm2满足
Y向主筋配置:E20@150(13509mm2,0.154%)Asy=13163mm2满足
抗冲切:满足
抗剪切:满足
局部受压:满足
2.3软弱下卧层验算结果
桩端持力层的地基承载力特征值fa1:0.000(kPa)
下卧层的地基承载力特征值fa2:0.000(kPa)
桩距sa:2.907(m)
无下卧土层,不需要验算。
2.4沉降计算结果(准永久组合作用下计算)
根据《桩基规范》5.5.8计算桩基沉降计算深度Zn
根据《桩基规范》5.5.6式5.5.6计算沉降
沉降计算点位置(x,y,z)(m):(0.000,0.000,-31.000)
沉降计算深度zn(m):5.400
沉降计算点附加应力(kPa):127.443
桩基等效沉降系数ψe:0.170
沉降计算点最终沉降量(mm):6.9
(x=0.000,y=0.000)承台沉降量(mm):6.9
8.2.3单桩水平承载力
1.1基本资料
1.1.1工程名称:工程一
1.1.2桩型:灌注桩;桩顶约束情况:铰接
1.1.3圆桩直径d=800mm;纵向钢筋的根数、直径为14φ22;桩身配筋率ρg=1.258%
1.1.4桩身混凝土强度等级C35,ft=1.575N/mm2,Ec=31334N/mm2;
纵向受力钢筋的混凝土保护层厚度cs=55mm;钢筋弹性模量Es=200000N/mm2
1.1.5桩顶允许水平位移x0a=6mm;桩侧土水平抗力系数的比例系数m=6MN/m4;
桩的入土长度h=28m
1.2计算结果
1.2.1桩身换算截面受拉边缘的截面模量W0
1.2.1.1扣除保护层厚度的桩直径d0=d-2c=800-2*55=690mm
1.2.1.2钢筋弹性模量与混凝土弹性模量的比值αE=Es/Ec=200000/31334=6.3829
1.2.1.3W0=πd·[d2+2(αE-1)ρg·d02]/32
=π*0.8*[0.82+2*(6.3829-1)*0.01258*0.692]/32=0.055329m3
1.2.2桩身抗弯刚度EI
1.2.2.1桩身换算截面惯性矩I0=W0·d0/2=0.05533*0.69/2=0.0190883m4
1.2.2.2EI=0.85Ec·I0=0.85*31334*1000*0.0190883=508396kN·m2
1.2.3桩的水平变形系数α按桩基规范式5.7.5确定:α=(m·b0/EI)1/5
1.2.3.1圆形桩当直径d≤1m时b0=0.9(1.5d+0.5)=0.9*(1.5*0.8+0.5)=1.530m
1.2.3.2α=(m·b0/EI)1/5=(6000*1.53/508396)0.2=0.4481(1/m)
1.2.4桩顶水平位移系数νx
1.2.4.1桩的换算埋深αh=0.4481*28=12.55m
1.2.4.2查桩基规范表5.7.2,桩顶水平位移系数νx=2.441
1.2.5桩身配筋率不小于0.65%的灌注桩的单桩水平承载力特征值按桩基规范式5.7.2-2确定:
Rha=0.75α3·EI·x0a/νx
1.2.5.1Rha=0.75*0.44813*508396*0.006/2.441=84.3kN
工作状态水平荷载116.7=421.5Kn桩水平承载力满足设计要求。
8.2.4连续梁计算
一、计算简图:

计算简图中的符号说明:G-恒载Q-活载R-人防
二、计算条件:
(1)计算参数:
工程名称:工程一
工程项目:项目一
连续梁编号:连续梁1
混凝土强度等级:C40
纵筋级别:HRB400
箍筋级别:HRB400
上部保护层厚度c1(mm):40
下部保护层厚度c2(mm):40
箍筋间距s(mm):200
箍筋指数n:6
最小配筋率(%):0.2
配筋放大系数:1.0
是否计算挠度:否
是否计算裂缝:否
是否进行支座弯矩调幅:否
抗震构造等级:非抗震
输出标准组合内力图:否
输出准永久组合弯矩图:否
恒载分项系数gG:自动
活载分项系数gQ:自动
活载组合值系数yc:0.7
活载准永久值系数yq:0.5
考虑梁自重:否
考虑活载不利布置:否
裂缝计算依据《混凝土结构设计规范》GB50010-2010
(2)以下是输入的荷载数据:
符号说明:
P-荷载值或荷载起点值(kN)P1-荷载终点值(kN)
X-对左右端均布荷载为荷载长度(mm),对称梯形荷载为折点距两端节点距离(mm)
对集中力和集中力矩荷载为荷载点距左端节点距离(mm)
对称三角形荷载和任意线布荷载为荷载起点距左端节点距离(mm)
X1-对称三角形荷载为荷载长度(mm),对任意线布荷载为荷载长度(mm)
三、计算依据:
《混凝土结构设计规范》GB50010-2010
《建筑结构荷载规范》GB5009-2012
四、计算结果:
(1)单位说明:弯菊见例:kN
纵筋面积:mm2箍筋面积:mm2/m
裂缝:mm挠度:mm
符号说明:Ø-HPB235A-HPB300B-HRB335C-HRB400D-HRB500
(2)以下是非人防组合下的内力、配筋、裂缝及挠度计算结果:
跨号:1跨长:3750截面尺寸:1000×1350
跨号:2跨长:3750截面尺寸:1000×1350
五、内力简图:


8.2.5交叉暗梁设计
执行规范:
《混凝土结构设计规范》(GB50010-2010(2015年版)),本文简称《混凝土规范》
《建筑结构荷载规范》(GB50009-2012),本文简称《荷载规范》
钢筋:d-HPB300;D-HRB335;E-HRB400;F-RRB400;G-HRB500;Q-HRBF400;R-HRBF500
-----------------------------------------------------------------------
1计算简图:

F取值Fmax=F/4+M/L=662.2/4+3110.9/2.26=1542Kn
其中F-基础上承受竖向力;M-基础上承受弯矩;L-塔吊对角线上两立柱间的距离(m)
2计算条件:
荷载条件:
均布恒载标准值:0.00kN/m_活载准永久值系数:0.50
均布活载标准值:0.00kN/m_支座弯矩调幅幅度:0.0%
梁容重:25.00kN/m3_计算时考虑梁自重:不考虑
恒载分项系数:1.30__活载分项系数:1.50
活载调整系数:1.00__
配筋条件:
抗震等级:不设防__纵筋级别:HRB400
混凝土等级:C40__箍筋级别:HRB400
配筋调整系数:1.0__上部纵筋保护层厚:40mm
面积归并率:30.0%__下部纵筋保护层厚:40mm
截面配筋方式:单筋__
3计算结果:
单位说明:
弯矩:_见例:kN
纵筋面积:mm2__箍筋面积:mm2/m
-----------------------------------------------------------------------
梁号1:跨长=3750B×H=1000×1350
左中右
弯矩(-):0.0000.0000.000
弯矩(+):0.0021598.3320.005
见例:614.744-1389.856-1389.856
上部as:505050
下部as:505050
上部纵筋:270027002700
下部纵筋:288635042886
箍筋Asv:1
上纵实配:6E25(2945)6E25(2945)6E25(2945)
下纵实配:8E25(3927)8E25(3927)8E25(3927)
箍筋实配:4E8@170(1183)4E8@170(1183)4E8@170(1183)
腰筋实配:10d20(3142)10d20(3142)10d20(3142)
上实配筋率:0.22%0.22%0.22%
下实配筋率:0.29%0.29%0.29%
箍筋配筋率:0.12%0.12%0.12%
本跨计算通过.
-----------------------------------------------------------------------
备注:因是承台内暗梁,腰筋可不按计算值设置。
4所有简图:

施工准备
塔基基础开挖
钎探
500厚3:7灰土
浇筑30cm厚
C30混凝土
养护
过渡键安装
端键安装
穿预应力
钢丝
配重件安装
验收
施工预应力
并锚固
中心键安装
素土夯实
1